Elegantne dvoetažne kuće s pogledom na more – samo 200 m od plaže!
Ove luksuzne dvoetažne kuće nude prekrasan pogled na more i nalaze se na mirnoj lokaciji, svega 200 metara od plaže.
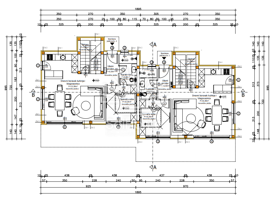
Raspored:
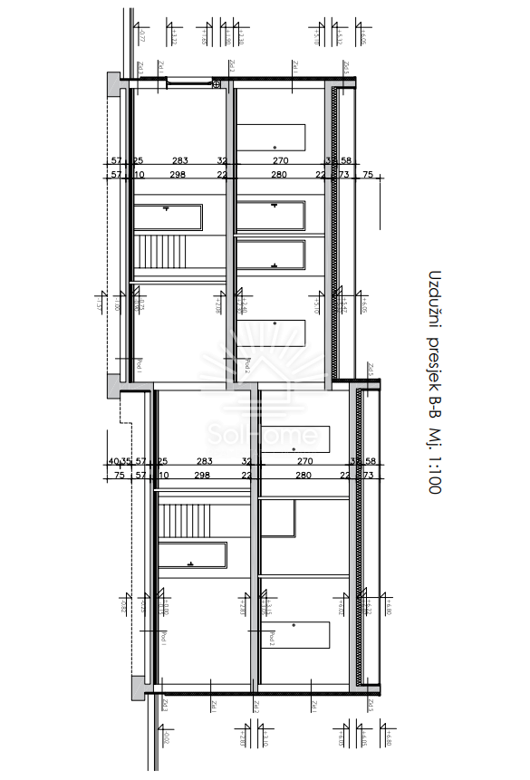
Podrum: Dnevni boravak s blagovaonicom, kuhinja, kupaonica i spavaća soba
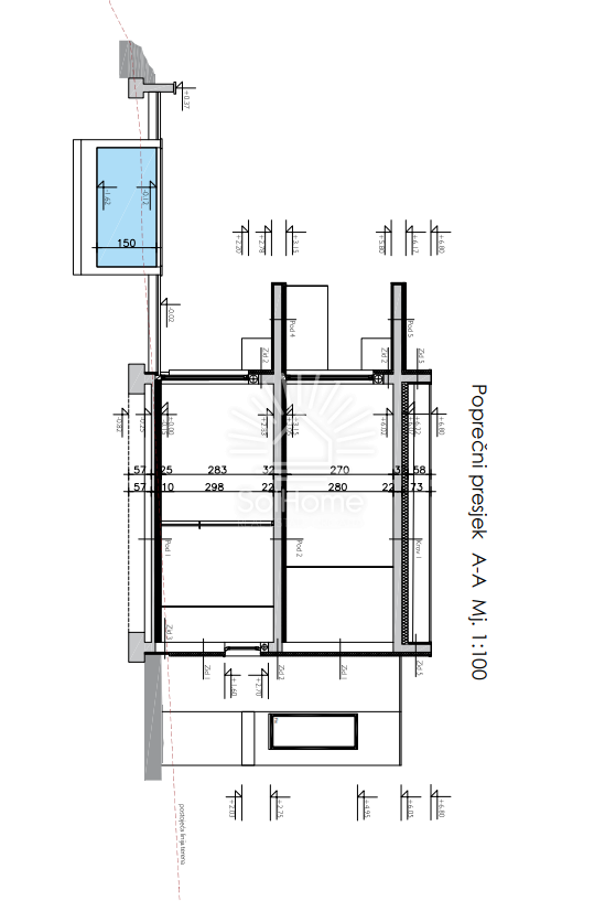
Kat: Dvije spavaće sobe, svaka s vlastitom kupaonicom i natkrivenom terasom
Značajke:
Grijani bazen, vrt i dodatna natkrivena terasa
Moderne keramičke pločice (120×60 cm)
Vrata i prozori SCHÜCO, sanitarije IDEAL STANDARD i GEBERIT
Sustav grijanja/hlađenja putem split sustava
2 privatna parkirna mjesta po kući
Potpuno namješteno, interijer dizajnirao Martin Pohl
Idealan izbor za one koji traže luksuzan život u slikovitom okruženju uz more.
Za više informacija slobodno nas kontaktirajte.
Komunalije:
Voda, Plin, Struja, Gradski vodovod, Grijanje: Sustav grijanja, klimatizacije i ventilacije, Telefon, Asfaltni put, Klima uređaj, Gradska kanalizacija
Dozvole:
Energetski razred: A, Građevinska dozvola, Uporabna dozvola
Tehnika:
Portafon, Kabelska televizija, Satelitska televizija, Internet, Alarmni sustav
Parking:
Parkirna mjesta: 3
Vrt:
Vrt, Bazen, Roštilj
Blizina sadržaja:
Park, Igralište, Udaljenost od mora: 200m, Trgovina, Javni prijevoz, Blizina mora
Ostalo:
Namješteno, Pogled na more, Vila, Godina izgradnje: 2024godina, Tip kuće: dvojna, Novogradnja
ID KOD AGENCIJE: 27
Sol Home
Agent s licencom
Mob: +49 163 635 49 30
Tel: +385977185872
E-mail: info@solhome.hr
www.solhome.hr






























