Luksuzna Vila s Pogledom na More u Blizini Zadra
Ova moderna vila smještena je na parceli od 560 m² i nudi ukupnu bruto stambenu površinu od 240 m².
Jedna od ključnih prednosti je neometan pogled na more, koji je osiguran uključivanjem dijela zemljišta ispred kuće u kupoprodajnu cijenu.
Vila se prostire na dvije etaže – prizemlje i kat.
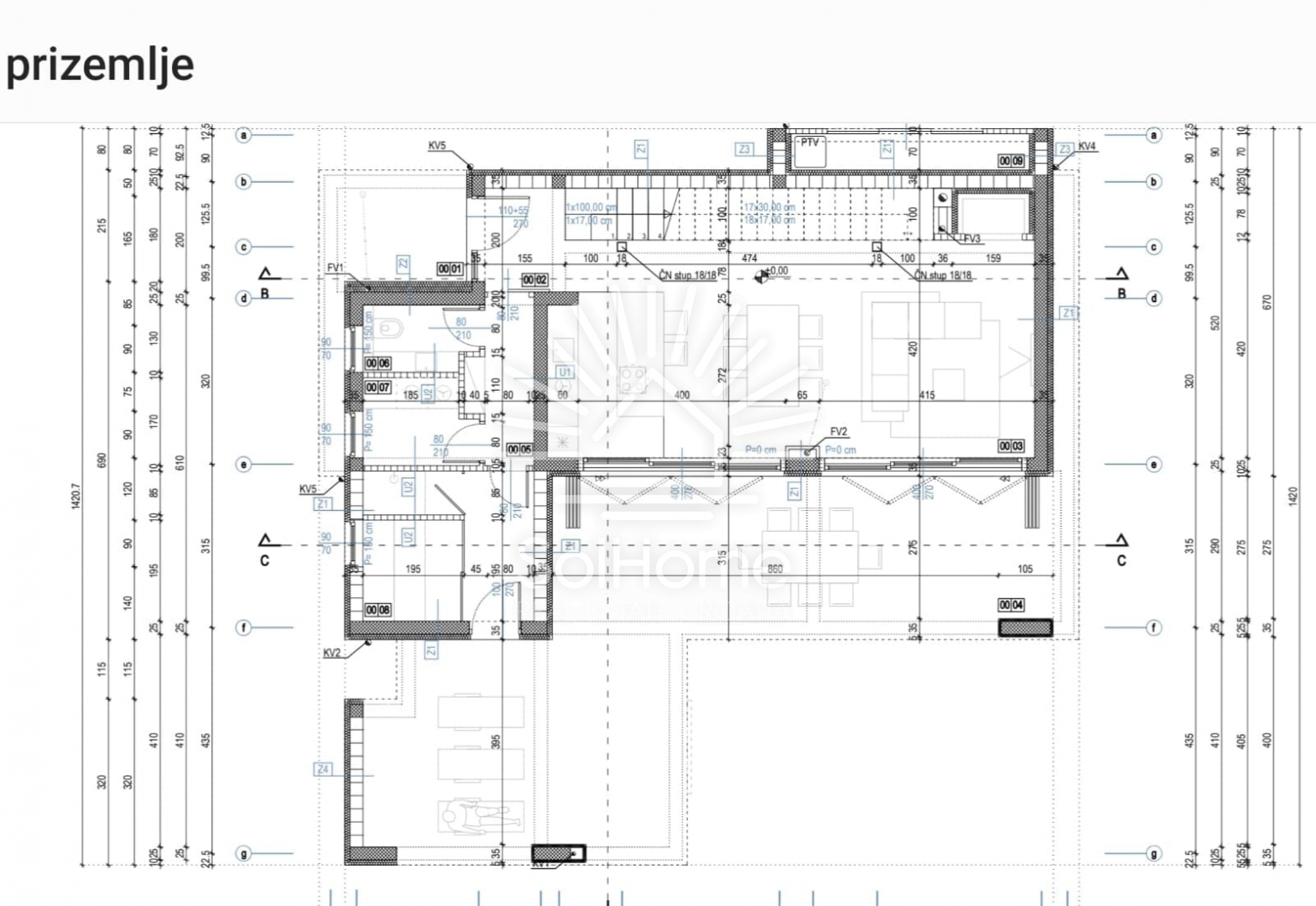
Prizemlje:
Sastoji se od prostranog dnevnog boravka, blagovaonice, potpuno opremljene kuhinje, gostinjskog toaleta, spremišta, tehničke prostorije i wellness prostora sa saunom koji ima direktan izlaz u vrt s bazenom i natkrivenom terasom.
Kat:
Do kata vodi unutarnje stubište, a tu se nalaze tri spavaće sobe – svaka s pogledom na more i vlastitom terasom. Glavna spavaća soba ima prostranu garderobu (walk-in ormar).
Vila se ističe visokokvalitetnim materijalima, uključujući dugi hrastov parket u spavaćim sobama, teraco i prirodni kamen te aluminijske staklene stijene visine 2,70 m.
Grijanje i hlađenje:
Podno grijanje s toplinskom pumpom, kontrolirano putem Wi-Fi-ja u svakoj prostoriji
Dimnjak kao dodatna mogućnost grijanja
Inverterski klima uređaji s Wi-Fi upravljanjem u svakoj prostoriji
Ostale značajke:
Priključci za struju i vodu
Centralni bojler od 160 litara za toplu vodu
Staklene ograde
Bazen (34 m²) s antibakterijskom folijom, pripremom za toplinsku pumpu i staklenim elementima
Wi-Fi upravljanje grijanjem, hlađenjem i video nadzorom
Walk-in tuševi
Vanjski tuš
Roštilj zona
SAT/TV i internet
10 cm fasadne izolacije (stiropor) i 25 cm termo blok cigla za toplinsku izolaciju
Električna ulazna vrata
Komunalije:
Voda, Struja, Gradski vodovod, Grijanje: Sustav grijanja, klimatizacije i ventilacije, Telefon, Asfaltni put, Klima uređaj, Gradska kanalizacija
Dozvole:
Energetski razred: A, Građevinska dozvola, Uporabna dozvola
Tehnika:
Portafon, Kabelska televizija, Satelitska televizija, Internet, Alarmni sustav
Parking:
Parkirna mjesta: 3
Vrt:
Vrt, Bazen, Roštilj
Blizina sadržaja:
Park, Sportski centar, Igralište, Pošta, Udaljenost od mora: 600m, Vrtić, Trgovina, Škola, Javni prijevoz, Blizina mora
Ostalo:
Terasa, Namješteno, Pogled na more, Vila, Broj etaža: katnica, Tip kuće: samostojeća, Novogradnja
ID KOD AGENCIJE: 12
Sol Home
Agent s licencom
Mob: +49 163 635 49 30
Tel: +385977185872
E-mail: info@solhome.hr
www.solhome.hr



















